
© 金伟琦, 王彦之, Power Station of Art
“长效设计:思考与实践”展览自从在深圳华·美术馆和上海明珠美术馆展出以来,展览空间的设计方案由Studio 10和小大建筑负责。展览策展人左靖一直致力于可持续设计的研究和实践,希望通过展览呈现一种“零废弃”的理念。在此背景下,我们的团队也积极践行可持续发展的理念,并与展览主办方合作推出了“以纸为主题”的展览。
Since the exhibition "Long-term Design: Thinking and Practice" has been exhibited in Shenzhen Hua·Art Museum and Shanghai Pearl Art Museum, Studio 10 and Xiaoda Architecture have been responsible for the design of the exhibition space. Exhibition curator Zuo Jing has been committed to the research and practice of sustainable design, hoping to present a concept of "zero waste" through the exhibition. In this context, our team is also actively practicing the concept of sustainable development, and cooperated with the exhibition organizer to launch a "paper-themed" exhibition.
Exhibition with "paper"
--
很多人注重展览和展览布置的前期工作,但却往往忽略了展览结束后的事情。展览空间只存在短暂的时间,撤展和重新布置之间的时间也很短暂,这是因为快速、低成本的建筑方式被采用,例如轻钢龙骨、石膏板和乳胶漆墙体等材料。然而,这种建筑方式在撤展时几乎只能通过全面破坏拆除,这会产生大量的垃圾和需要繁琐清理的问题。
© 金伟琦, 王彦之, Power Station of Art
© 金伟琦, 王彦之, Power Station of Art
© 金伟琦, 王彦之, Power Station of Art
© 金伟琦, 王彦之, Power Station of Art
© 金伟琦, 王彦之, Power Station of Art
© 金伟琦, 王彦之, Power Station of Art
© 金伟琦, 王彦之, Power Station of Art
© 金伟琦, 王彦之, Power Station of Art
© 金伟琦, 王彦之, Power Station of Art
© 金伟琦, 王彦之, Power Station of Art
© 金伟琦, 王彦之, Power Station of Art
© 金伟琦, 王彦之, Power Station of Art
© 金伟琦, 王彦之, Power Station of Art
© 金伟琦, 王彦之, Power Station of Art
© 金伟琦, 王彦之, Power Station of Art
© 金伟琦, 王彦之, Power Station of Art
© 金伟琦, 王彦之, Power Station of Art
© 金伟琦, 王彦之, Power Station of Art
© 金伟琦, 王彦之, Power Station of Art
© 金伟琦, 王彦之, Power Station of Art
© 金伟琦, 王彦之, Power Station of Art
© 金伟琦, 王彦之, Power Station of Art
© 金伟琦, 王彦之, Power Station of Art
© 金伟琦, 王彦之, Power Station of Art
© 金伟琦, 王彦之, Power Station of Art
© 金伟琦, 王彦之, Power Station of Art
© 金伟琦, 王彦之, Power Station of Art
© 金伟琦, 王彦之, Power Station of Art
© 金伟琦, 王彦之, Power Station of Art
© 金伟琦, 王彦之, Power Station of Art
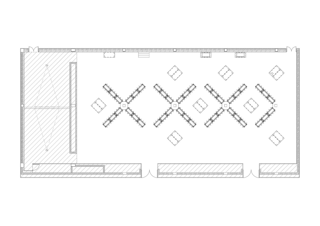
© 金伟琦, 王彦之, Power Station of Art为了展示展墙和展桌的稳固性,我们采取了多项构造措施。由于瓦楞纸比其他常规建造材料轻,我们需要特别考虑支撑和防摇晃措施。每个1.2m宽的单元模块都架高于地面15公分,并设置了3块勒板支脚,每块勒板前后各凸出展墙15公分,这样做可以有效避免观众在观展时不小心碰到展墙。为了保证展墙的稳定性,每个模块内部都设有沙箱作为配重,并根据沙箱的尺寸设置了合理的摆放空间。这样每个单元模块本身具有载重能力,可以保证展墙不会晃动或倒塌。另外,每三个单元模块形成的3.6m墙体靠近柱子中心的部分,彼此之间采用钢构件进行连接,使得结构进一步稳固。
© 金伟琦, 王彦之, Power Station of Art
© 金伟琦, 王彦之, Power Station of Art
© 金伟琦, 王彦之, Power Station of Art
© 金伟琦, 王彦之, Power Station of Art
© 金伟琦, 王彦之, Power Station of Art
© 金伟琦, 王彦之, Power Station of Art通过采用纸板作为建造材料,这个展览设计不仅加工时间短,安装过程也非常简单,因为纸板部件重量轻,拼装过程不需要使用任何工具或特殊技能,素人也可以轻松完成。320张原材料纸板经过数控切割加工后,生成了2566个纸板部件,最终这些部件在现场由六七个人在两天内组装成了42个竖向展体模块和22个桌台展体模块。这种高效率的建造状态得益于瓦楞纸板材料的轻便特性和简单的拼装方法,不需要专业工人和复杂的工具。
另外,这个展览设计也具有高回收性。一方面,展陈结束后,这些瓦楞纸板部件可以被拆解并重新安装在其他地方进行再利用,延续展览的使用寿命。另一方面,展墙和展桌本身也可以被感兴趣的人士收藏和使用。即使这些展览部件最终被废弃,它们的可回收率高达96%,能够进行有效的再利用。
© 金伟琦, 王彦之, Power Station of Art
© 金伟琦, 王彦之, Power Station of Art
© 金伟琦, 王彦之, Power Station of Art
© 金伟琦, 王彦之, Power Station of Art











